Delivered fully coordinated, compliant rollouts for Boxer Superstores under aggressive national timelines.
Mission
High-velocity national expansion.
Challenge
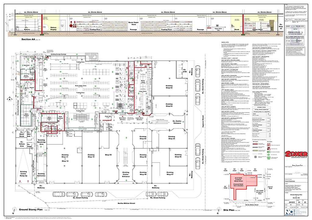
Managing a high-volume portfolio requiring dual-track expertise: new builds launching on immovable deadlines and complex retrofits performed without disrupting live trade.
Featured Projects
Bridge City, Pine Crest Centre, Galleria Mall, Phoenix Plaza, and various rural developments.
Result
Trading on schedule. Fully compliant stores ready for trade, protecting critical revenue streams from regulatory delays.